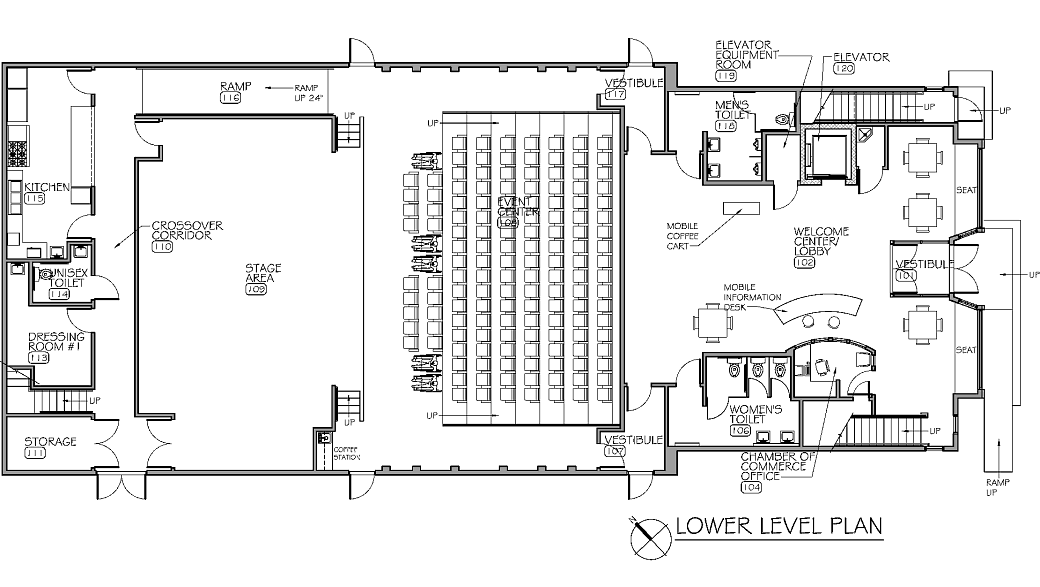
Back to Main Article