|


On the 1st of April the Preservation Association appeared before
the St. James Planning Commission to present a modified plan.
A leading theater consulting firm had spent two days on the Island
(at Frank Galatis expense) the previous week, and had made
some suggestions. The existing plan was okay, they said, but if
something exceptional was the goal, then the building should be
extended by 23'. The rub was, this would eliminate the five parking
places immediately behind.
Before the presentation was made, Don Tritsch, a member of both
the PC Board and PABI's Board, was asked if he intended to vote,
or would abstain. He stated that this matter had been settled
at the previous meeting: he was elected to vote, and felt he could
consider this proposal on its merits. But a member of the audience
said he thought this would be very difficultfor anyone.
When the Board did not agree, he called for comment from Township
officials, whereupon Don Vyse said that the Town Board did not
interfere with the PC.
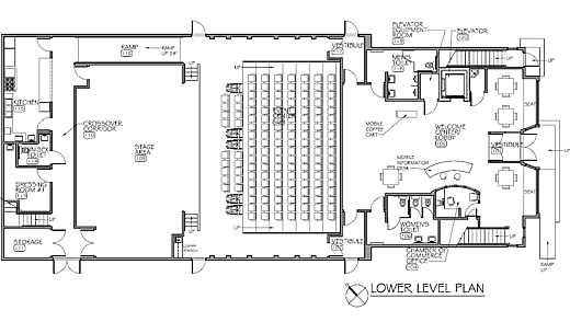
Judy Lanier made the presentation. She announced that the acquisition
of a parking lot next to the Christian Church was proceeding,
and that PABI would increase its off-site parking places from
23 to 30 (the lot will hold more, but be shared by other businesses.)
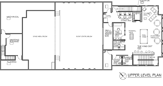
The theater consultants felt the stage was too small, the mechanical
room was in the way, a back bathroom was needed, the inclusion
of an in-ceiling roll-down screen and a projection booth would
take additional space, and a dressing room, more storage, and
a better spot for utilities were needed. The Welcome Center and
Youth/Seniors area could not be made smaller, so the extra 23'
would require eliminating 5 on-site parking spots more than
made up for, in her view, by the additional 7 off-site spots.
Much of the discussion centered on the means to walk from the
proposed new lot to the downtown area. A sidewalk would cost another
$50,000, which the Township could not afford. And it might result
in more tree-cutting, depending on the route. Plus there was a
concern over who would maintain the sidewalk, especially in the
winter.
When the discussion centered on the value of on-site parking,
Bill McDonough reported that he had looked into theaters in Charlevoix
and Petoskey, both having 500 seats and no on-site parking. Many
of the 35 people in attendance spoke out in favor of accepting
the modified plan. Kitty McNamara thought we should do it
right, and pointed out that the Island's youth would also
benefit from having a professional-quality stage for their musical
and dramatic rehearsals and performances. E. B. Lange, Joddy Croswhite,
Donna Stambaugh, Joan and Bob Becker, Pinky Harmon, Lisa Gillespie,
Jon Fogg, and Ed Wojan thought the Island deserved something that
was first-rate.
At the beginning of the meeting the PC seemed reluctant to grant
this modification. To a certain extent everyone was exhausted
from all the changes that had been made over the years to PABI's
plans, and the sentiment seemed to be that the PC had gone as
far as it could to accommodate these constant modifications. But
the overwhelming support offered by the public won over the PC,
and it became apparent even before the vote that it would approve.
When the vote came, the first three to be cast were for approval,
making Don Tritsch's vote unnecessary. Consequently, he voluntarily
abstained. The fifth vote was not cast because Chairman John Fiegen
was off the Island.
The next step following this approval: soon the project will
go out on bids.
Note:
Click Here
for a larger
view of the above plans.
The Real Beacon:
Search the Beaver Beacon Web Site & Archive:
|